Подбор квартиры

Аквилон Stories

Адрес: Ленинградская область, Всеволожский район, Кудрово, проспект Строителей

550 квартир
от 3 147 185 ₽
23.6–76.9 м2
Сдача комплекса:
II квартал 2025
Застройщик:
Петербургская недвижимость

Жилой комплекс «Аквилон STORIES» не будет исключением. Лаконичная и самодостаточная архитектура, высокие стандарты безопасности, энергосберегающие технологии, перспективный развивающийся район и «разумная» квартирография, ставшая визитной карточкой компании — это не просто набор заметных преимуществ, а новый уровень комфорта в современном пригороде с европейским настроением.

«Аквилон STORIES» станет настоящим переосмыслением комфорт-класса. К привычным характеристикам сегмента мы добавили внушительный спектр особых преимуществ. Главный акцент будет сделан на энергоэффективности, инновационных системах «умного» управления домом, комплексном благоустройстве территории и новых требованиях к безопасности, продиктованными современными реалиями. Работая над проектом, мы стремились создать максимально комфортную среду с заботой о будущих жильцах, где учтены интересы каждого, где всё продумано до мелочей.

Локация
Кудрово — это современный перспективный пригород Петербурга с развитой инфраструктурой. Всё необходимое — рядом. Это своеобразный город в городе, где, находясь в контексте мегаполиса, можно насладиться уединением, особой европейской размеренностью и ощущением загородной жизни. В Кудрово и в соседних районах —несколько живописных парков и садов, ближайший из которых — парк Оккервиль —раскинулся всего в пяти минутах ходьбы от будущего комплекса. Кудрово окружён огромными зелёными массивами: Невский лесопарк обнимает город на востоке, Ржевский лесопарк — на севере. До метро «Улица Дыбенко» и обширной сложившейся инфраструктуры Невского района — всего несколько минут на машине.

Авторский дизайн-проект отделки парадных, лифтовых и межквартирных холлов придаст вашему дому присущую бизнес-классу индивидуальность. Строгая геометрия деталей, максимум естественного света благодаря остеклённым во всю высоту входным зонам, общее и точечное искусственное освещение, малошумные лифты KONE или аналог, почтовые ящики с доступом по системе ESMART через телефон, система Smart Key для бесключевого доступа во двор и парадные.

  • Район: Всеволожский
  • Отделка: Предчистовая, чистовая
  • Паркинг: Подземная, гостевая
  • Этажность корпусов: 12
Инфраструктура рядом с ЖК
Детский сад
Поликлиника
Школа
Продуктовые магазины

Параметры квартиры

Сортировка:
Аквилон Stories
1-комн. квартира
Корпус 1
Площадь кухни:
12.262 м
Жилая площадь:
10.672 м
Этаж/этажность:
3 / 12
Тип отделки:
без отделки
Число комнат:
1
Статус ЖК:
Не готов
Дата сдачи:
2025 год, 2 квартал
Аквилон Stories
1-комн. квартира
Корпус 2
Жилая площадь:
17.192 м
Этаж/этажность:
3 / 12
Тип отделки:
без отделки
Число комнат:
1
Статус ЖК:
Не готов
Дата сдачи:
2025 год, 2 квартал
Аквилон Stories
1-комн. квартира
3 очередь
Жилая площадь:
15.892 м
Этаж/этажность:
1 / 12
Тип отделки:
Предчистовая
Число комнат:
1
Статус ЖК:
Не готов
Дата сдачи:
2025 год, 2 квартал
Аквилон Stories
1-комн. квартира
3 очередь
Жилая площадь:
15.612 м
Этаж/этажность:
4 / 12
Тип отделки:
без отделки
Число комнат:
1
Статус ЖК:
Не готов
Дата сдачи:
2025 год, 2 квартал
Аквилон Stories
1-комн. квартира
3 очередь
Жилая площадь:
15.412 м
Этаж/этажность:
12 / 12
Тип отделки:
без отделки
Число комнат:
1
Статус ЖК:
Не готов
Дата сдачи:
2025 год, 2 квартал
Аквилон Stories
1-комн. квартира
3 очередь
Жилая площадь:
15.412 м
Этаж/этажность:
12 / 12
Тип отделки:
без отделки
Число комнат:
1
Статус ЖК:
Не готов
Дата сдачи:
2025 год, 2 квартал
Аквилон Stories
1-комн. квартира
3 очередь
Жилая площадь:
15.612 м
Этаж/этажность:
7 / 12
Тип отделки:
без отделки
Число комнат:
1
Статус ЖК:
Не готов
Дата сдачи:
2025 год, 2 квартал
Аквилон Stories
1-комн. квартира
3 очередь
Жилая площадь:
17.262 м
Этаж/этажность:
1 / 12
Тип отделки:
без отделки
Число комнат:
1
Статус ЖК:
Не готов
Дата сдачи:
2025 год, 2 квартал
Аквилон Stories
1-комн. квартира
3 очередь
Жилая площадь:
15.412 м
Этаж/этажность:
5 / 12
Тип отделки:
без отделки
Число комнат:
1
Статус ЖК:
Не готов
Дата сдачи:
2025 год, 2 квартал
Аквилон Stories
1-комн. квартира
3 очередь
Жилая площадь:
17.992 м
Этаж/этажность:
1 / 12
Тип отделки:
без отделки
Число комнат:
1
Статус ЖК:
Не готов
Дата сдачи:
2025 год, 2 квартал
Аквилон Stories
1-комн. квартира
3 очередь
Жилая площадь:
15.612 м
Этаж/этажность:
7 / 12
Тип отделки:
без отделки
Число комнат:
1
Статус ЖК:
Не готов
Дата сдачи:
2025 год, 2 квартал
Аквилон Stories
1-комн. квартира
3 очередь
Жилая площадь:
15.612 м
Этаж/этажность:
4 / 12
Тип отделки:
без отделки
Число комнат:
1
Статус ЖК:
Не готов
Дата сдачи:
2025 год, 2 квартал
Аквилон Stories
1-комн. квартира
3 очередь
Жилая площадь:
15.612 м
Этаж/этажность:
2 / 12
Тип отделки:
без отделки
Число комнат:
1
Статус ЖК:
Не готов
Дата сдачи:
2025 год, 2 квартал
Аквилон Stories
1-комн. квартира
3 очередь
Жилая площадь:
15.412 м
Этаж/этажность:
5 / 12
Тип отделки:
без отделки
Число комнат:
1
Статус ЖК:
Не готов
Дата сдачи:
2025 год, 2 квартал
Аквилон Stories
1-комн. квартира
3 очередь
Жилая площадь:
15.412 м
Этаж/этажность:
8 / 12
Тип отделки:
без отделки
Число комнат:
1
Статус ЖК:
Не готов
Дата сдачи:
2025 год, 2 квартал
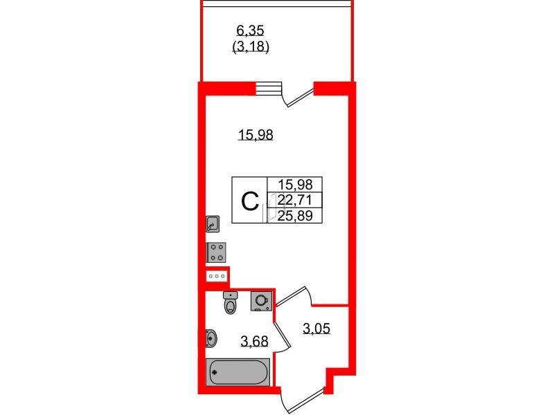
Аквилон Stories
1-комн. квартира
2 очередь (1 этап)
Жилая площадь:
15.982 м
Этаж/этажность:
2 / 12
Тип отделки:
без отделки
Число комнат:
1
Статус ЖК:
Не готов
Дата сдачи:
2025 год, 2 квартал
Аквилон Stories
1-комн. квартира
3 очередь
Жилая площадь:
15.412 м
Этаж/этажность:
8 / 12
Тип отделки:
без отделки
Число комнат:
1
Статус ЖК:
Не готов
Дата сдачи:
2025 год, 2 квартал
Аквилон Stories
1-комн. квартира
3 очередь
Жилая площадь:
15.612 м
Этаж/этажность:
3 / 12
Тип отделки:
без отделки
Число комнат:
1
Статус ЖК:
Не готов
Дата сдачи:
2025 год, 2 квартал
Аквилон Stories
1-комн. квартира
3 очередь
Жилая площадь:
15.612 м
Этаж/этажность:
8 / 12
Тип отделки:
без отделки
Число комнат:
1
Статус ЖК:
Не готов
Дата сдачи:
2025 год, 2 квартал
Аквилон Stories
1-комн. квартира
3 очередь
Жилая площадь:
15.612 м
Этаж/этажность:
9 / 12
Тип отделки:
без отделки
Число комнат:
1
Статус ЖК:
Не готов
Дата сдачи:
2025 год, 2 квартал
Аквилон Stories
1-комн. квартира
3 очередь
Жилая площадь:
14.382 м
Этаж/этажность:
2 / 12
Тип отделки:
без отделки
Число комнат:
1
Статус ЖК:
Не готов
Дата сдачи:
2025 год, 2 квартал
Аквилон Stories
1-комн. квартира
3 очередь
Жилая площадь:
15.412 м
Этаж/этажность:
8 / 12
Тип отделки:
без отделки
Число комнат:
1
Статус ЖК:
Не готов
Дата сдачи:
2025 год, 2 квартал
Аквилон Stories
1-комн. квартира
2 очередь (1 этап)
Жилая площадь:
15.412 м
Этаж/этажность:
6 / 12
Тип отделки:
без отделки
Число комнат:
1
Статус ЖК:
Не готов
Дата сдачи:
2025 год, 2 квартал
Аквилон Stories
1-комн. квартира
2 очередь (1 этап)
Жилая площадь:
15.412 м
Этаж/этажность:
4 / 12
Тип отделки:
без отделки
Число комнат:
1
Статус ЖК:
Не готов
Дата сдачи:
2025 год, 2 квартал
На странице